Este site utiliza cookies para permitir a mudança de língua e o armazenamento dos seus imóveis favoritos. Ao utilizar este site, concorda que o mesmo utilize cookies.

Hotel para Venda no Porto, com rendimento - Oportunidade de Investimento

1.350.000€



Referência

Hotel_BonfimPortoVenda

Natureza

Venda

Tipo de Imóvel

Negócio

Subtipo de Imóvel

Hotel

Tipologia

Não se aplica

Estado

Usado

Certificado energético

B


Distrito

Porto

Concelho

Porto

Freguesia

Bonfim

Código Postal

4300-003


Área Útil

496 m2

Área Bruta

537 m2

Área de Terreno

0 m2



Contactar Imobiliária

*Preenchimento obrigatório
Ao clicar em 'Enviar', declara que aceita a nossa Política de Privacidade.
OPORTUNIDADE DE INVESTIMENTO - EDIFÍCIO NO BONFIM, PORTO

Este imóvel é o investimento ideal para quem procura rendimento garantido num mercado turístico consolidado e em crescimento. Localizado na Rua Pinto Bessa, no coração do Porto, o edifício está próximo a pontos turísticos icónicos como a Ponte Dom Luís I e o Rio Douro, além de oferecer acesso rápido às estações de metro de Campanhã, Heroísmo e Campo 24 de Agosto.

Contrato de Arrendamento Ativo
- O edifício encontra-se arrendado e em operação como Hostel, garantindo uma renda mensal de 6.000,00 €/mês, o que se traduz em:
- Rendimento Anual Bruto: 72.000,00 €

Sobre o Imóvel:
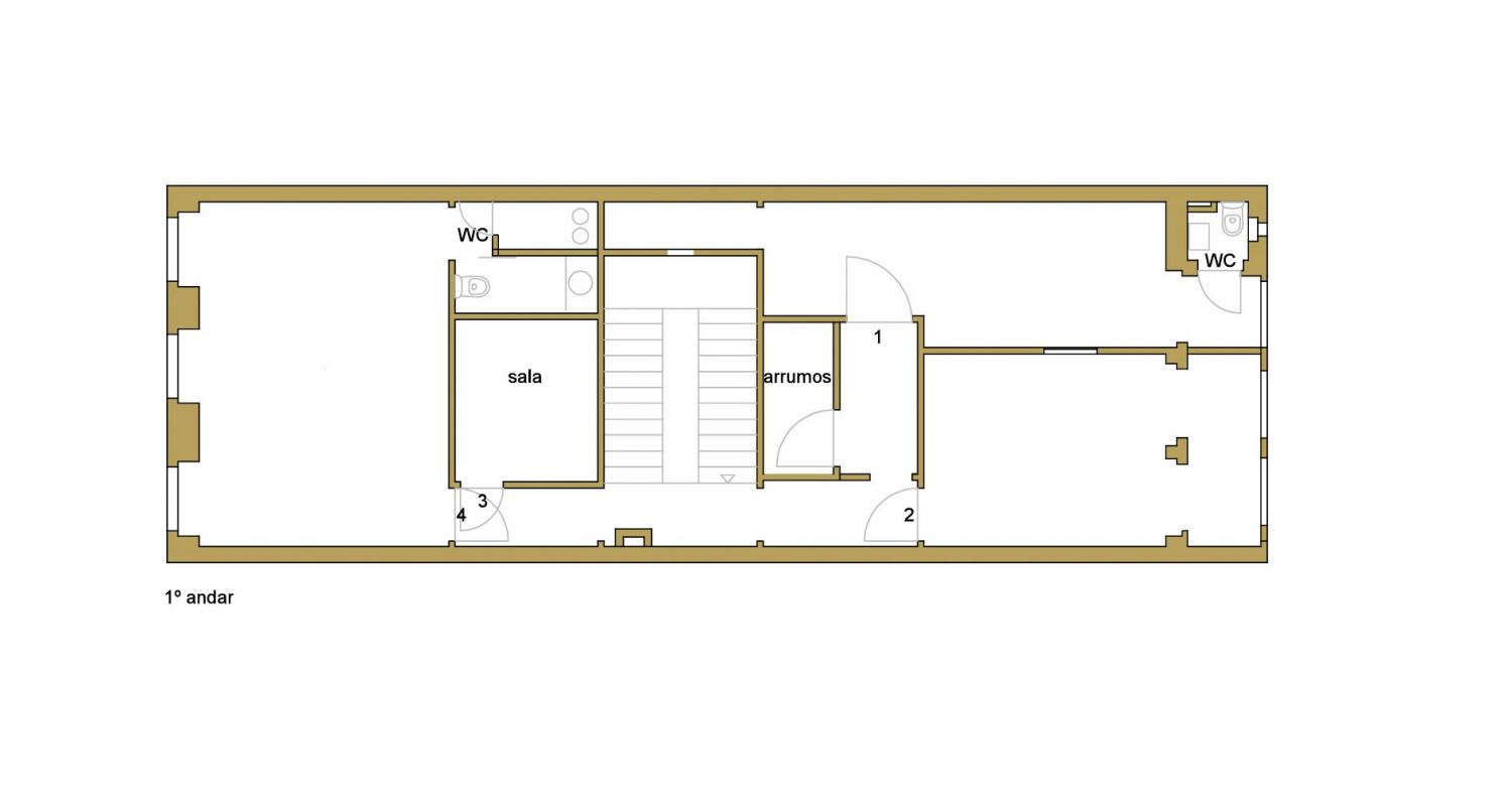
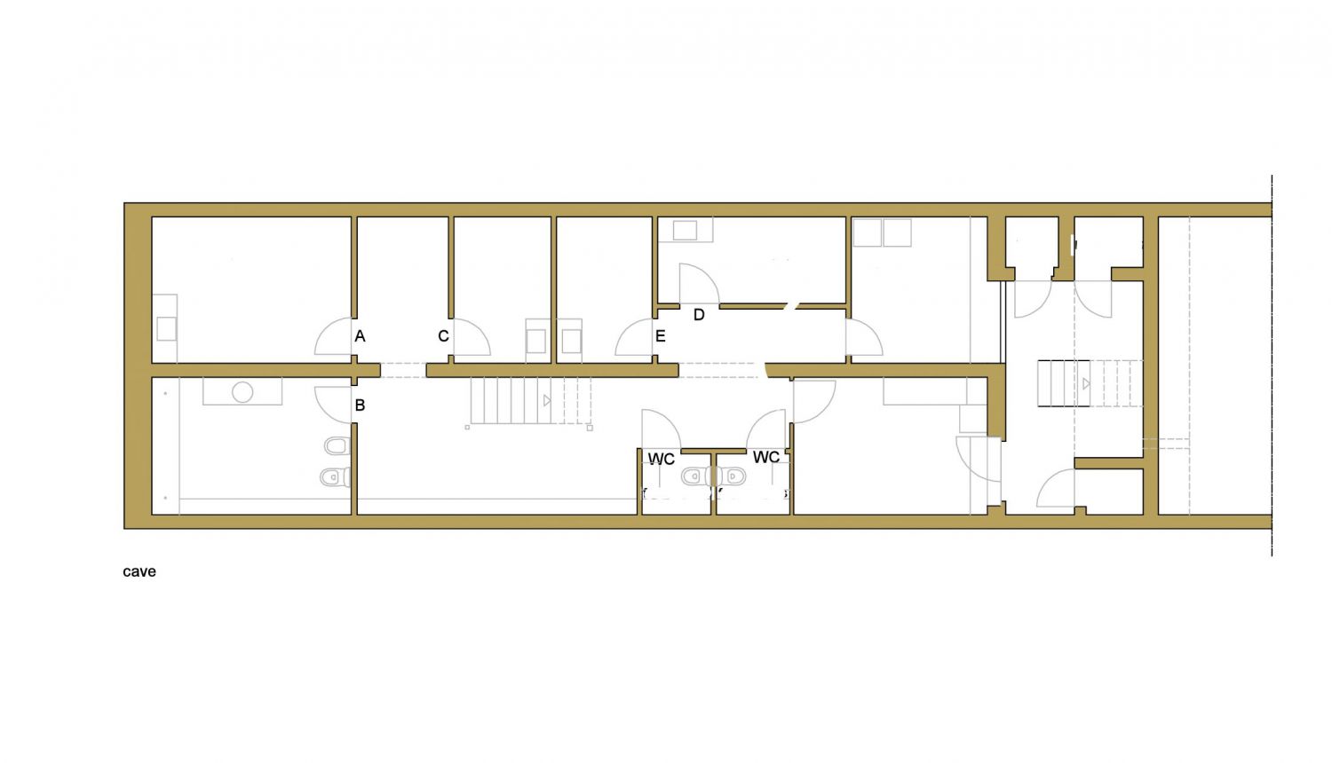
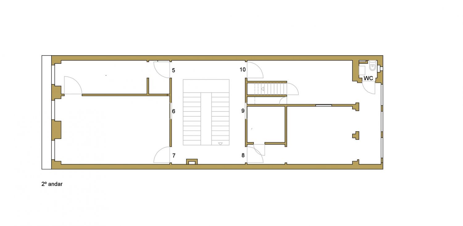
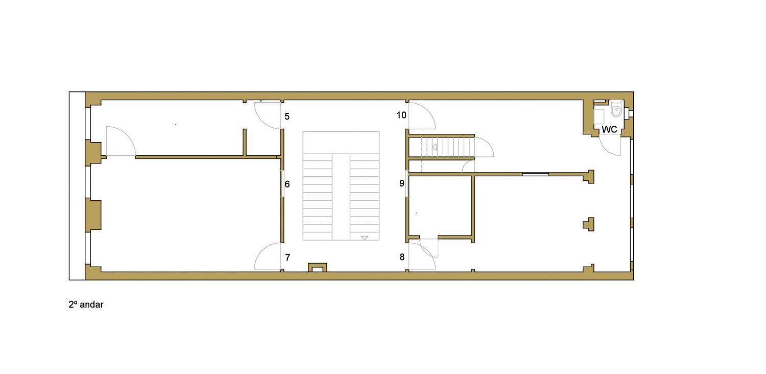
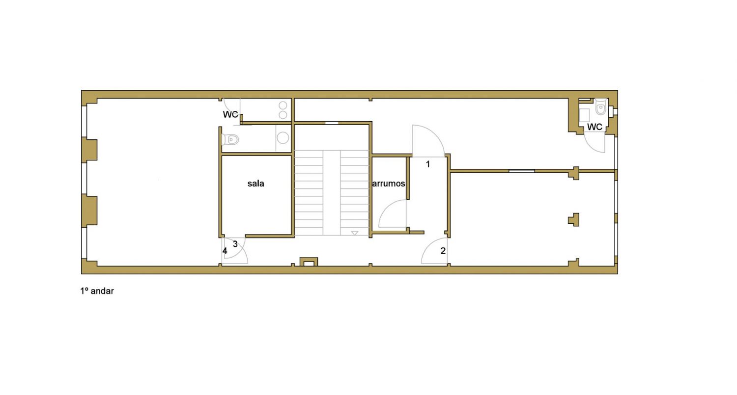
- Edifício de 5 pisos: cave, rés-do-chão, 2 andares, águas-furtadas e quintal.
- Área Bruta Privativa: 537,55 m².

Aproveite esta oportunidade de investimento com renda estável e elevado potencial de valorização. 
Para mais informações ou para agendar uma visita, entre em contacto conosco!
Geral
GeraisPisos:5
GeraisArrendado:Sim
GeraisNº de Divisões :25
GeraisNº de Casas de Banho:9
VistasCidade:Sim

Este imóvel não tem áreas definidas.